- Woonoppervlakte
- Circa 74 mยฒ
- Perceeloppervlakte
- Circa 581 mยฒ
- Bouwjaar
- Gebouwd in 2007
- Aantal kamers
- 4 kamers (3 slaapkamers)
Het Dwingelderveld ten westen, de Hunzevallei ten oosten, authentieke Drentse brinkdorpen dichtbij en sportieve mogelijkheden overal; dit is Molecaten Park Kuierpad op de Drentse Hooglanden! Nergens anders in Drenthe vindt u een vakantiepark met zoveel spannende faciliteiten bij elkaar op Molecaten Outdoor Drenthe; klimpark, wildwaterbaan, skatebaan.... Relaxen doet u op รฉรฉn van de zandstrandjes voor uw caravan of dobber heerlijk rond in een rubberbootje op รฉรฉn van de vijvers.
einde citaat van de website Molecate Park Kuierpad. Beter kunnen wij het niet omschrijven.
Gelegen tussen het Adventure parc en de Speelvijver met strandje is het (semi) bungalowpark gesitueerd. De parkeerplaats is op korte loopafstand en op wandelafstand zijn alle voorzieningen van het park bereikbaar.
Dit onlangs gerenoveerde 6 persoons-huis is gelegen aan de binnenrand van het parkje en neemt deel aan de verhuurpool. De renovatie omvatte onder meer het verwijderen van e bedstee, het verplaatsen van de keuken, waardoor ruimte ontstond voor de slaapkamer, vernieuwing van de vloeren, ook op de verdieping waarbij een fraaie harde vloer is gelegd en de badkamer op de verdieping is gerenoveerd.
De huizen zijn relatief nieuw, goed geรฏsoleerd en van alle gemakken voorzien.
De parklasten bedragen ca. โฌ 1500,- per jaar, en daarvoor wordt ook het tuinonderhoud gedaan. Gas en licht wordt via een collectief contract bij het park betrokken.
De woning wordt geheel gemeubileerd en gestoffeerd aangeboden.
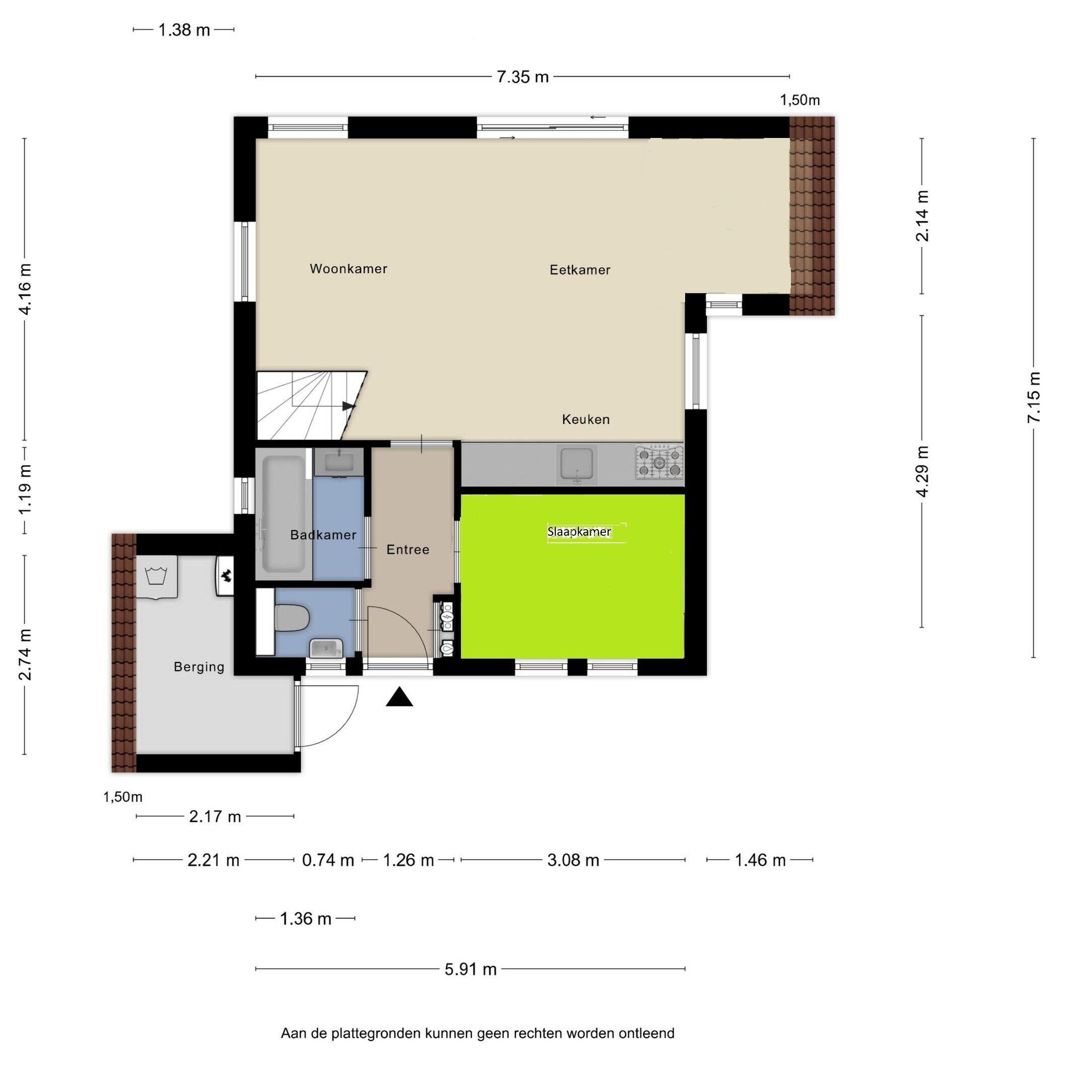
Indeling:
Begane grond: Entree in hal met meterkast, separaat toilet, badkamer met bad en wastafel, slaapkamer, toegang tot de ruime living met vloerverwarming, open keuken met alle gebruikelijke apparatuur en schuifpui.
Via de open trap in de hoek van de living is de verdieping toegankelijk met aan de overloop een tweetal ruime slaapkamers en een gerenoveerde badkamer met douche, toilet en wastafelmeubel.
Naast de entree is van buiten af de inpandige berging bereikbaar , alwaar ook de CV installatie haar opstelplaats heeft gekregen en een wasmachineaansluiting aanwezig is.
Keurig onderhouden huis met alle vrijheid het te benutten naar eigen inzicht op een zeer wel voorzien en netjes park. Lees de volledige omschrijving
Overdracht
- Vraagprijs
- โฌ 175.000 k.k.
- Status
- Beschikbaar
- Aanvaarding
- In overleg
- Permanente bewoning
- Permanente bewoning is niet toegestaan
Bouw
- Object type
- Landhuis, vrijstaande woning
- Soort bouw
- Bestaande bouw
- Bouwjaar
- 2007
- Soort dak
- Zadeldak bedekt met pannen
Oppervlakte en inhoud
- Woonoppervlakte
- 74 mยฒ
- Perceeloppervlakte
- 581 mยฒ
- Inhoud
- 240 mยณ
Indeling
- Aantal kamers
- 4 kamers (3 slaapkamers)
- Aantal badkamers
- 2 badkamers en 1 apart toilet
- Badkamervoorzieningen
- Ligbad, 2 wastafels, douche, en toilet
- Aantal woonlagen
- 2 woonlagen
- Voorzieningen
- Mechanische ventilatie, schuifpui, en TV kabel
Energie
- Energielabel
- C
- Energielabel registratie
- 07-09-2023
- Verwarming
- Cv-ketel
- Warm water
- Cv-ketel
- Cv ketel
- Remeha avanta (gas gestookt combiketel uit 2007, eigendom)
Buitenruimte
- Ligging
- Aan bosrand, aan rustige weg, aan water, buiten bebouwde kom, in bosrijke omgeving, landelijk gelegen en in recreatiepark
- Tuin
- Tuin rondom
Parkeergelegenheid
- Soort parkeergelegenheid
- Op eigen terrein en openbaar parkeren
Energieverbruik in Wezuperbrug
Energielabel deze woning
Energielabel C
Publicatie energielabel: 07-09-2023
Stroomverbruik per jaar
(Gemiddelde vrijstaande woning in Wezuperbrug)
Gasverbruik per jaar
(Gemiddelde vrijstaande woning in Wezuperbrug)
* Cijfers zijn afkomstig van het CBS en bedoeld als indicatie en kunnen verschillen voor deze woning
Indicatie hypotheeklasten
Eigen inleg:
Spaargeld / overwaarde
Rente:
Laagste 10-jaars rente
Laagste 10-jaars rente
2,98% - Centraal Beheer Groen... - NHG
3,2% - Argenta Groen Hypotheek... - 80%
Laagste 20-jaars rente
3,19% - Centraal Beheer Groen... - NHG
3,57% - Argenta Groen Hypothee... - 80%
Laagste 30-jaars rente
3,34% - Centraal Beheer Groen... - NHG
3,74% - Argenta Groen Hypothee... - 80%
Hypotheek:
Bruto maandlasten: โฌ 0 p/m
Netto maandlasten: โฌ 0 p/m
Hoe berekenen we dit?
Het rentepercentage is gebaseerd op de laagste 10 jaars vaste rente voor รฉรฉn hypotheekdeel. De vermelde rente (2.98% met NHG) is gecontroleerd op 16-12-2025. Deze berekening is gebaseerd op een annuรฏteitenhypotheek die volledig wordt afgelost, waarbij de maandlasten gedurende de gehele looptijd gelijk blijven. De werkelijke rente en netto maandlasten kunnen variรซren, afhankelijk van uw persoonlijke situatie en de hypotheekverstrekker. Raadpleeg een financieel adviseur voor een nauwkeurige berekening en advies. Aan deze berekening kunnen geen rechten worden ontleend; het dient enkel als indicatie.
Documentatie
Kadastrale kaart
Leefomgeving
WOZ waarderapport
BAG uittreksel
Brochure
Plattegronden PDF
Bezoek onze website
Qualis Makelaars
Nationale Monumentenorganisatie
Bezichtiging
Bod uitbrengen
Waardebepaling
Zoekopdracht
Alles downloaden
Zonnegrenzen bekijken
Inwoners in Wezuperbrug
Cijfers voor postcodegebied 7853
- Totaal aantal inwoners
- 165 inwoners
- Mannen
- 48%
- Vrouwen
- 52%
Inwoners in Wezuperbrug
Cijfers voor postcodegebied 7853
- tot 15 jaar
- 9%
- 15 tot 25 jaar
- 9%
- 25 tot 35 jaar
- 12%
- 45 tot 65 jaar
- 48%
- 65 en ouder
- 24%
Huishoudens in Wezuperbrug
Cijfers voor postcodegebied 7853
- Eenpersoons zonder kinderen
- 2000%
- Meerpersoons zonder kinderen
- 3500%
- Huishoudens zonder kinderen
- 5500%
Huishoudens in Wezuperbrug
Cijfers voor postcodegebied 7853
- Huishoudens met รฉรฉn kind
- 1%
- Huishoudens met meerdere kinderen
- 1500%
- Huishoudens met kinderen
- 1501%
Woningen in Wezuperbrug
Cijfers voor postcodegebied 7853
- Woningen voor 1945
- 33%
- Woningen tussen 1945 en 1965
- 20%
- Woningen tussen 1965 en 1975
- 7%
- Woningen tussen 1975 en 1985
- 7%
- Woningen tussen 1985 en 1995
- 20%
Woningen in Wezuperbrug
Cijfers voor postcodegebied 7853
- Woningen tussen 1995 en 2005
- 13%
- Woningen tussen 2005 en 2015
- 1%
- Woningen na 2015
- 1%
- Huurwoningen
- 20%
- Koopwoningen
- 80%
Overige in Wezuperbrug
Cijfers voor postcodegebied 7853
- Gemiddelde WOZ waarde
- โฌ 267.000,-
- Personen onder de 65 met uitkering
- 9%
Overige in Wezuperbrug
Cijfers voor postcodegebied 7853
- Adressen per kmยฒ
- 42
- Stedelijkheid (schaal 1 op 5)
- 20%
MJM Makelaardij
Indien u vragen heeft of u wilt een bezichtiging inplannen, dan kunt u gebruik maken van het formulier hiernaast. Er zal daarna op korte termijn contact met u worden opgenomen.
Contact opnemen
MJM - Makelaarskantoor NVM Qualis
MJM - Makelaarskantoor Jacob Muller, een erkende NVM Qualis NMO makelaar, bevindt zich in een historisch gebouw in het hart van Westerbork.
Als onderdeel van de NVM (Nederlandse Vereniging van Makelaars), biedt MJM toegang tot het meest uitgebreide, actuele assortiment van residentiรซle en commerciรซle vastgoedobjecten in Nederland.
Onze registratie bij het RMT (Register Makelaar Taxateur), zoals te zien op www.vastgoedcert.nl, staat garant voor onze expertise.
We zijn toegewijd om u te assisteren bij de koop en verkoop van vastgoed en staan ook klaar om alle soorten taxaties uit te voeren. Voor hypotheken, verzekeringen en bouwgerelateerde diensten, introduceren we u graag aan gerenommeerde aanbieders in onze sector.
Ons streven is om uw opdrachten zorgvuldig, op tijd, volledig en betrouwbaar uit te voeren. Dit omvat een persoonlijke aanpak, gedegen rapportage en volledige verantwoording.
Wij geloven sterk in transparantie, klantgerichtheid en integriteit.
Wij nodigen u uit voor een vrijblijvend gesprek om onze methodes te bespreken en al uw vragen te beantwoorden.
Kantooruren:
Maandag tot vrijdag van 09:00 tot 18:00 uur en op zaterdag alleen op afspraak. Neem voor meer informatie of om een afspraak te maken contact op via 0593-562045 of stuur een e-mail naar info@mjm.nl
"MJM, uw partner in vastgoedwaarde"
Nieuwste reviews
-
Westdorperstraat 19
Servicegerichtheid was groot. Niet te beroerd om zelf blad te blazen om goede fotoโs te kunnen maken.Voor de samenwerking was er wederzijds...
-
Brinkstraat 17
Het is allemaal voorspoedig en vlot verlopen. De communicatie was helder en plezierig, en de makelaar was altijd beschikbaar bij vragen.
-
Veenakkers 50
Jacob blijft altijd rustig onder verschillende omstandigheden. Hij is deskundig en geeft een professioneel en logisch antwoord op vragen. Ee...